

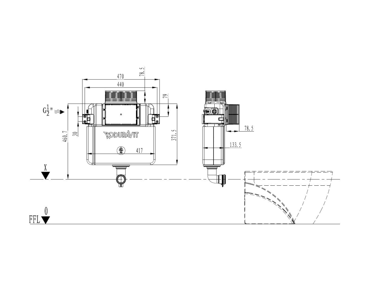
In front of the wall: Original Duravit Design. Behind the wall: DuraSystem®. With the new installation frames, Duravit offers reliable and convenient in-wall technology for toilets and urinals. While the high-grade actuator plates are visible.
Learn More